Inicio Nosotros Productos Calidad Novedades Contacto
ECESA
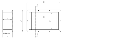
Caja rectangular con tapa atornillada seguridad aumentada
Aplicaciones
Estas cajas son ideales en instalaciones eléctricas donde se requiere un recinto a prueba de agua, polvo o cualquier otro agente exterior. Se utilizan como: • Caja de paso de conductores, por medio de borneras. • Caja para alojar elementos de seguridad aumentada.
Normas
IRAM-IAP-IEC 79-0/79-7
Clasificación
Grado de Protección IP65.
Ejemplo de pedido para distribución de acometidas

Rosca1/2´´3/4´´1´´1  1/4´´1  1/2´´2´´2  1/2´´3´´4´´
BSP123456789
Código de diámetros para acometidas
RoscaBSPMétrica
LetrasAD
Modelo de caja
Modelo de caja
Capacidad máxima de acometidas BSP/NPT por ladoDimensiones
Lado menorLado mayorExterioresInterioresBandeja
1/2´´3/4´´1´´1 1/4´´1 1/2´´2´´2 1/2´´3´´4´´1/2´´3/4´´1´´1 1/4´´1 1/2´´2´´2 1/2´´3´´4´´ABCFGHAnchoLargo
ECESA - 132--1----32t11----9816010010010018080100
ECESA - 232111----32111----98180180200200410100200
ECESA - 3321111---4321111--118215160300200520130150
ECESA - 44321111--4321111--118215255400350410150300
ECESA - 5321111---6432111--11820254500400521200500
ECESA - 64321ll1--0,6431111--1182624160055040050600
ECESA - 76431111--b431111--12126026010010030080400
ECESA - 8106422111-IOö422111-170300260250210100180180
ECESA - 94331111--8630,2211--1453101002002S0100230130
ECESA - 100,84111111-1420533221117130020150420500230130
ECESA - 11643T1-1--d632222--121300260200250300230150
ECESA - 1210642211I-l485332211174310260200250400230180
ECESA - 1386322-1--6632222--1243t0310250250410230230
ECESA - 14148533211-148533221-1743I031025010020023ß230
ECESA - 1540,1211-1--10642211--124360285150300500250130
ECESA - 1684321111-45I064102222174320230250150700250150
ECESA - 176432221--10042222--24360265263300600280155
ECESA - 18106422211-1610643222-174360260278300200250180
ECESA - 198642221--10642222--12438033025035030025023s
ECESA - 201610643222216664322221773003803003004003002$0
ECESA - 212214855322222148S53222227380380300300500300280
ECESA - 22643222I--12853221--127430280200350400330100
ECESA - 2314853321112012854222217043u33u400350400330230
ECESA - 242012854222220128542222100430430J50350300.3.J0330
ECESA - 25261610653322261610653322227130430350350200330330
ECESA - 261485332tI12214855322218048033025ti300100350320
ECESA - 272214s553222302012554322230480300300400400350280
ECESA - 2822t4855322222148553222120452500400400250350380
ECESA - 2916106412222201610653332180120380100450150425245
ECESA - 3022I4855322232212ß64A3223054738030045065043ß55
ECESA - 31281810664322442816t08653398053038u30045042043ß255
ECESA - 3242261610ß54334226t6t085433280515510410435320415400
ECESA - 3352202012106654ST34201210660,8413053053045ti450410430430
ECESA - 34161064322222810664353180585380450200100500100
ECESA - 3522I4855322225t8106643331805804804005000480380
ECESA - 363824l488543:i251010ß85433230585500400500500480100